Restauration et transformation d’une ferme traditionnelle en maison individuelle.
235 m2
L’honor de cos (82)
Livrée en Juin 2017
Photographies : Sandrine Iratcabal
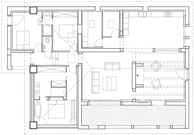
Nichée dans le village de l’Honor-de-Cos, nous découvrons cette ferme traditionnelle dans son état originel : sol en terre battue, murs constitués d’un mélange de briques en terre crue et en terre cuite, sans menuiseries extérieures, une charpente bois endommagée par le temps, des pièces petites et sombres. La maitrise d’ouvrage se questionnait sur la possibilité de démolir pour reconstruire ou de conserver les murs. La mise en valeur de ce patrimoine régional nous paraissant essentielle, le choix a été de conserver la construction originelle. Les contraintes structurelles et thermiques de la brique en terre crue se sont révélées être des atouts d’inertie et d’acoustique, avec un impact faible pour l’environnement. Une lame d’air a été laissée entre l’isolation et le mur en brique crue afin de laisser respirer la terre et ne pas perturber les échanges aérothermiques. La charpente bois a été auditée et seules les pièces défectueuses ont été remplacées. La couverture est refaite dans son intégralité sans ajout de gouttière, pour ne pas assécher les fondations. Les espaces très partitionnés ont été largement ouverts par des systèmes poteaux poutres en béton coulé en place. La cheminée en terre cuite est créée et placée en rotule au cœur des pièces de vie. Notre parti pris : garder l’âme du lieu et révéler la matérialité dans son état naturel en utilisant uniquement des matériaux bruts.
© Sandrine Iratcabal photographe
















