Toggle navigation
b2p architecture
projets
b2p
actualités
contact
La Grange
Transformation d’une grange en une maison inviduelle
129 m2
Saleix (09)
Plan de situation
Plan masse
Plan rez-de-chaussée
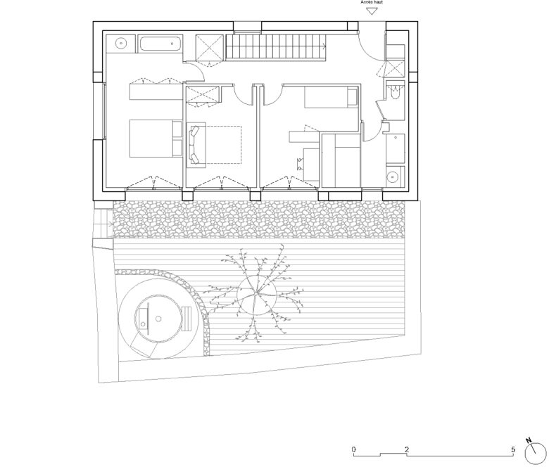
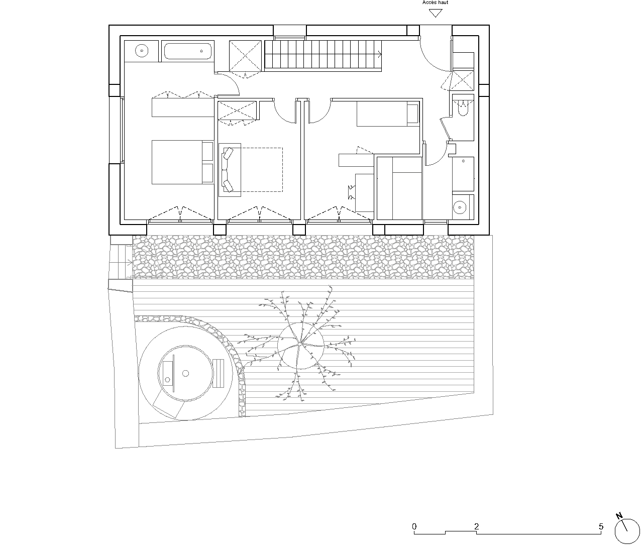
Plan rez-de-jardin
Façade est
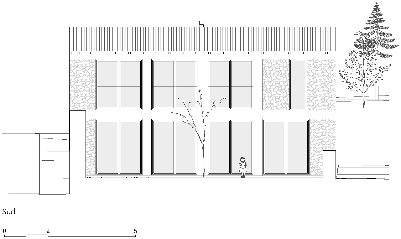
Façade sud
Façade nord
Façade ouest
Coupe
L’Agora – Ecole supérieure pluridisciplinaire
Prince noir
Villa K
Charger plus