Transformation d’un ancien chai en loft au coeur des Chartrons
260 m2
Bordeaux (33)
Photographies : Agnès Clotis
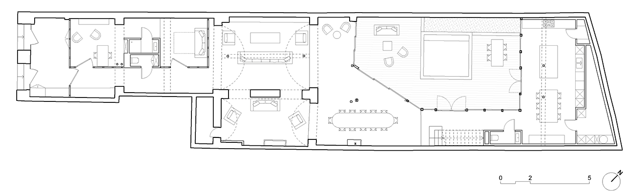
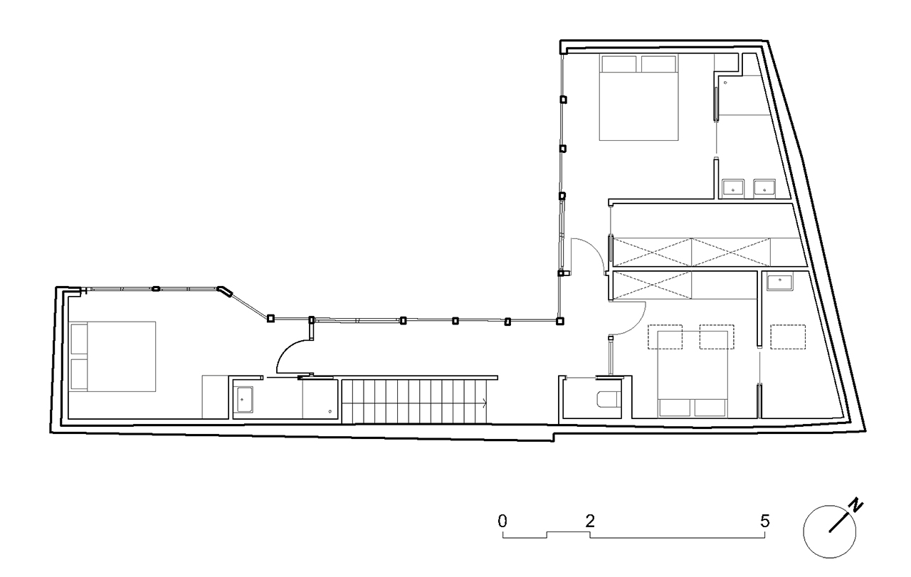
Dans un chai ancien, au cœur du quartier des Chartrons à Bordeaux, l’intervention architecturale consiste à transformer le lieu en «loft». L’idée étant de créer un trait d’union entre un lieu chargé d’histoire où des femmes et des hommes ont travaillé et un lieu pour vivre. La configuration étroite et tout en long du chai s’articule autour d’un patio qui est utilisé comme «le poumon» du projet, vecteur de lumière et de vues traversantes. Cet espace extérieur, est agrémenté de végétation et d’un bassin pour devenir le paysage intérieur autour duquel s’enroule le ruban contenant les usages de la vie : la cuisine, le salon, le coin lecture.
Une structure métallique vitrée existante est conservée et transformée en insérant des menuiseries extérieures bois et en apportant des teintes claires pour apporter douceur et chaleur.
A l’intérieur, peu de cloisons sont créées afin de laisser des perspectives de vues plus profondes et de la transparence. Les matériaux utilisés et sélectionnés sont laissés bruts : béton teinte pierre au sol en rappel à la mémoire tellurique du site, menuiseries bois, acier, pierre apparente. Un escalier est créé pour exploiter un étage recevant les pièces de nuit. Des fers à béton aciers sont utilisés pour créer le garde corps.

























