Rénovation d’un immeuble en chambres d’hôtes au coeur de Bordeaux
580 m²
Bordeaux (33)
Livrée en 2023
Photographies : Laurence Revol
A deux pas du Jardin Public, cette œuvre mixte, (ode de la pierre modénaturée et des prémices du béton) se situe au croisement de la rue Mandron et de la rue Saint Hubert.
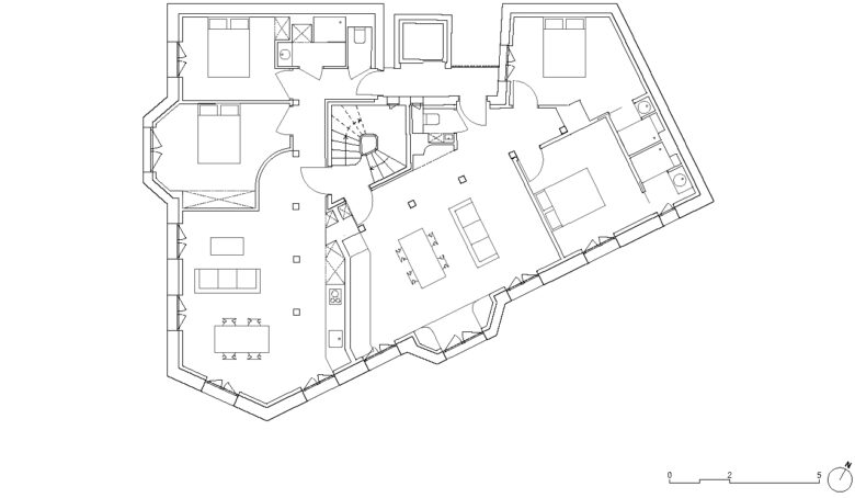
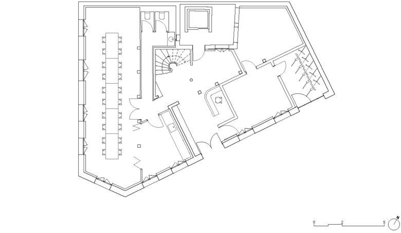
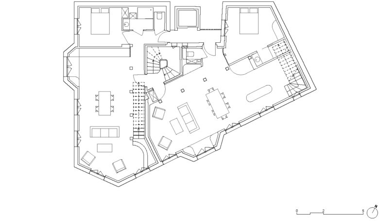
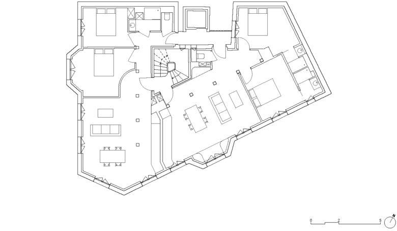
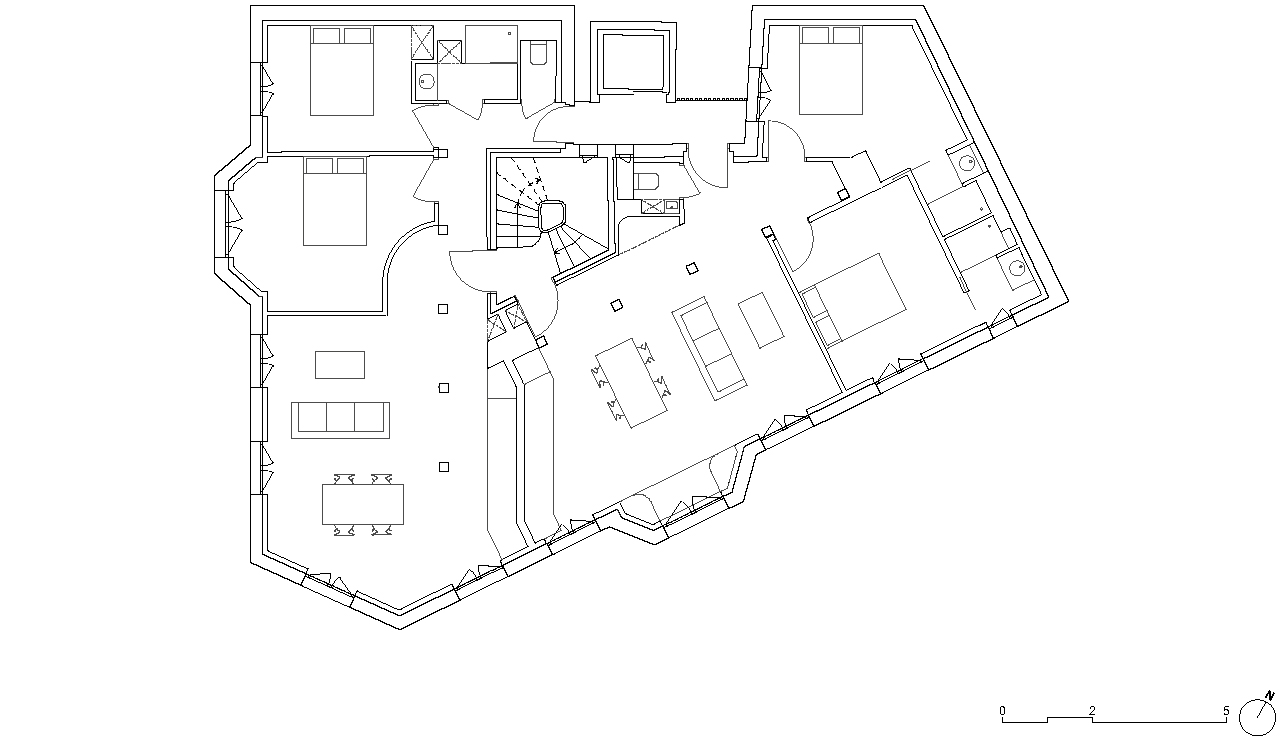
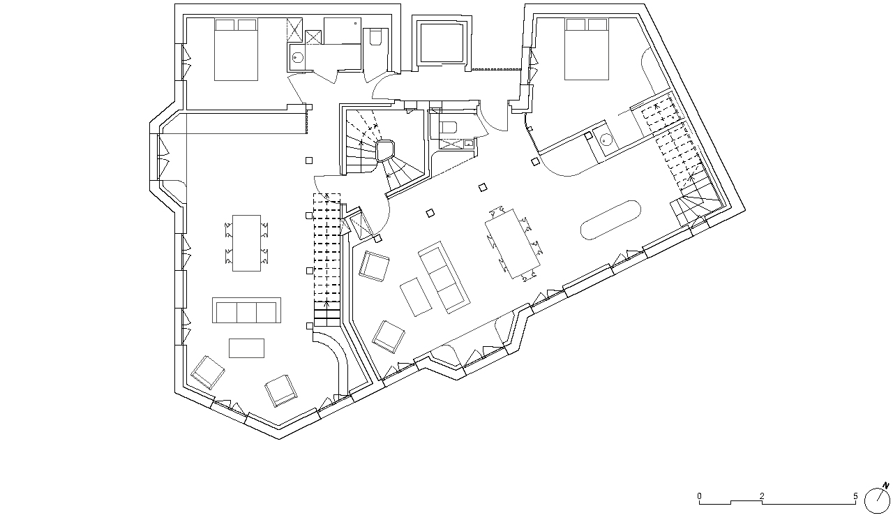
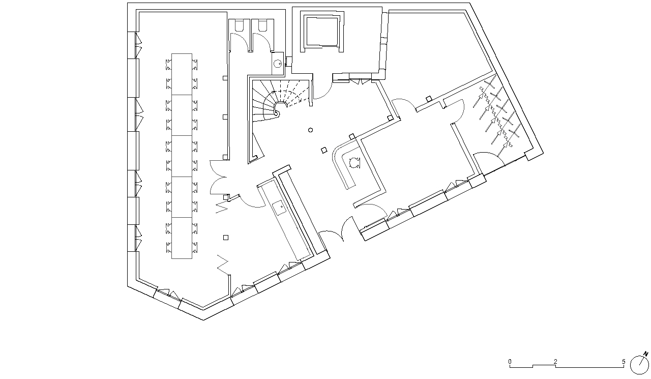
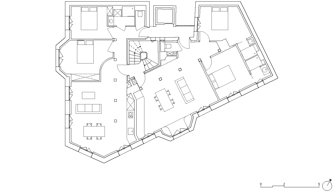
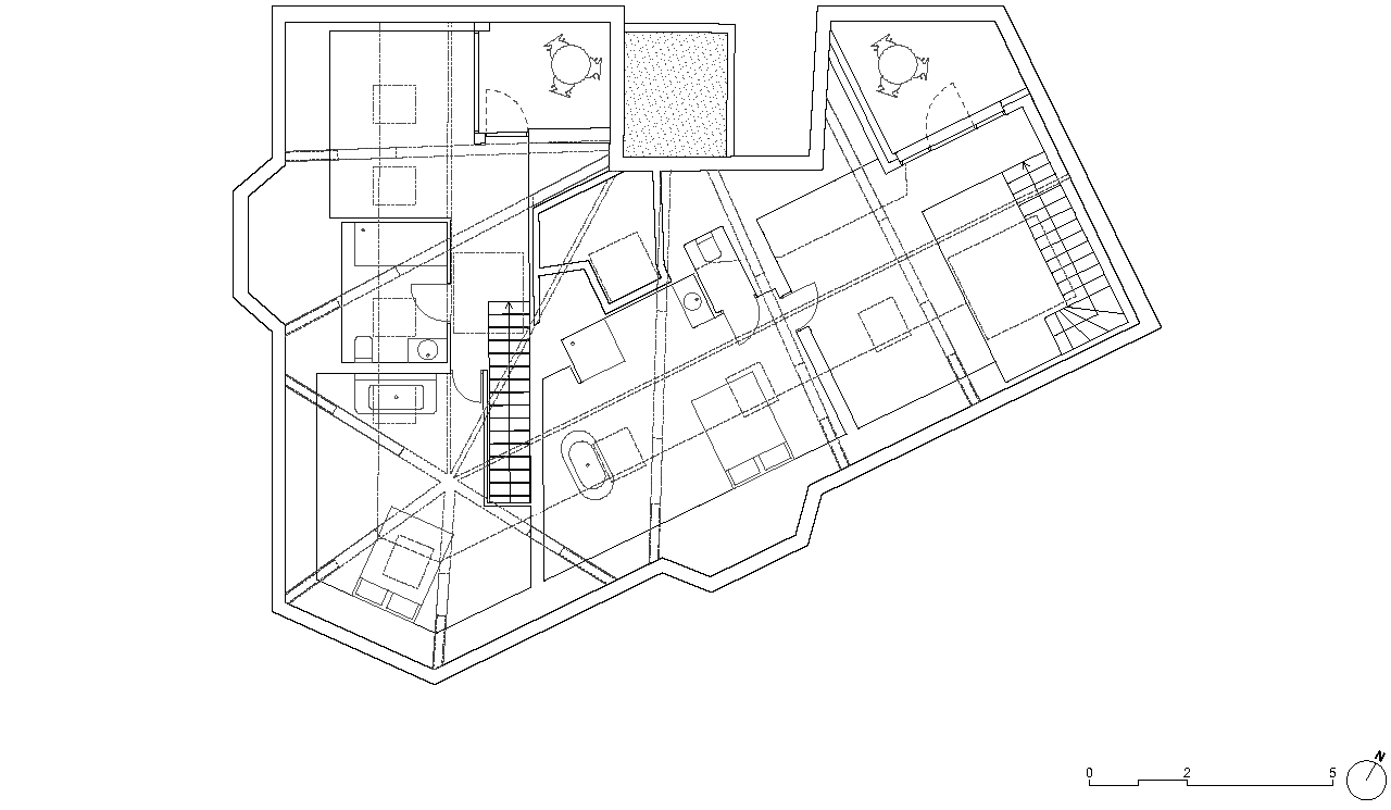
Originellement immeuble d’habitation, nos clients ont souhaité lui redonner vie sous la forme d’une chambre d’hôte offrant de grandes chambres familiales et un lieu commun convivial.
Le concept d’accueil est axé sur les familles avec enfants en bas âge, proposant tout le confort nécessaire pour voyager avec des tout-petits.
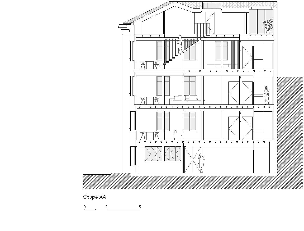
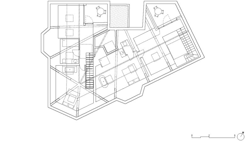
La découverte d’une structure fragile a nécessité de lourdes reprises pour palier à des murs de refends historiques, support des planchers, non ferraillés.
La démolition a mis à nu de magnifiques voûtains béton moulés en place.
Nous choisissons de les révéler et de les assumer. La contrainte devient dans ce cadre le moteur du projet, l’univers intérieur.
Cette dualité inattendue des matériaux contrastés, béton et pierre, nous a orienté naturellement vers un projet assumant les surfaces brutes.
L’ensemble des murs de renfends, ont été remplacés pour un jeu de poteaux/poutres coulés en place après étaiements de l’ensemble des planchers. Du plancher haut R+3 au rez-de-chaussée, l’immeuble fut sur un temps du chantier comme « suspendu » structurellement.
Doublages, isolations, coulages de mobiliers en bétons, menuiseries intérieures bois : autant d’éléments créés qui ont permis d’exprimer une conjugaison de matières brutes non transformées.
Deux terrasses sur le toit, ont été créées dans les niveaux supérieurs.
Photographies : ©Laurence Revol
Architectes : b2p architecture
Déco : Hobo club




































