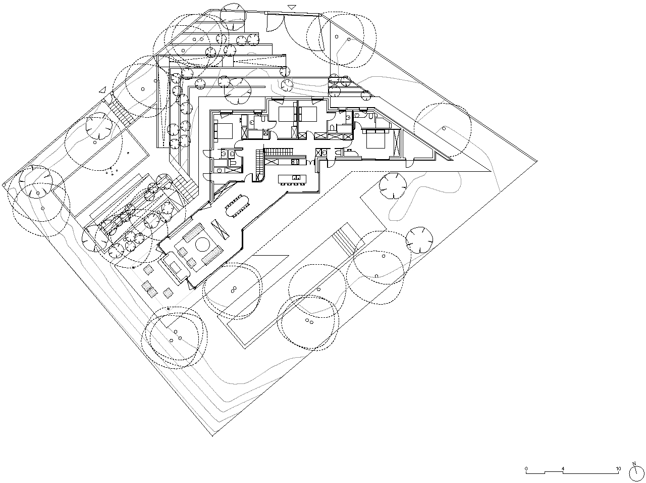
Villa K

Vue nord-ouest

Rénovation et extension d’une maison des années 70
La Palmyre (17) 

maîtrise d’ouvrage : privée
architecte : atelier b2p architecture
mission : complète
surface : 326 m2
livraison : juillet 2027