Rénovation d’une villa des années 70
Soulac (33)
Livrée en Janvier 2024
Photos @ Agnès Clotis
Œuvre d’un disciple de l’école bordelaise JL Darras, ce projet nous a touché dès la première visite.
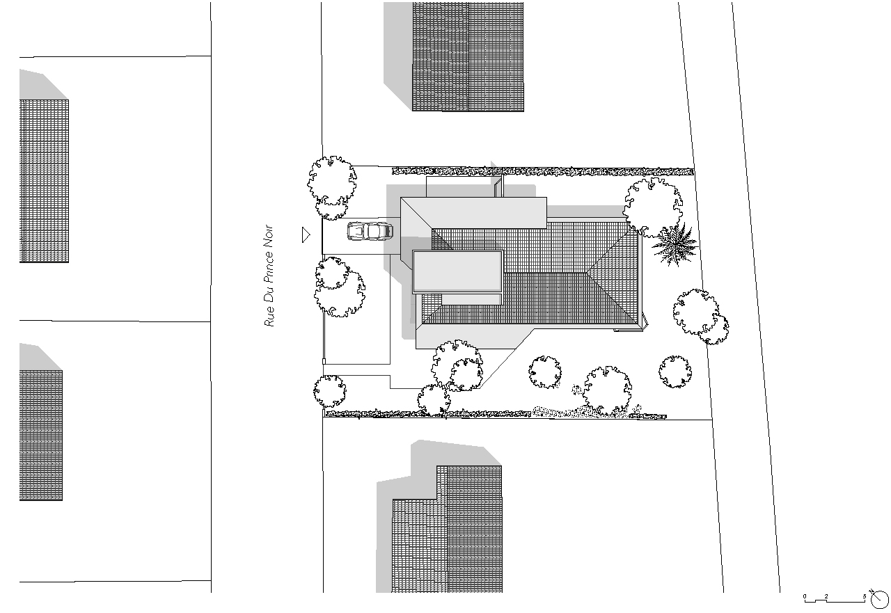
Le temps a opéré : les plans historiques révèlent un projet peut-être contraint, entre les souhaits primaires et la réalisation.
L’intention architecturale a été de respecter l’œuvre au maximum, sans dénaturation, en cherchant l’essence originelle brute pour la restituer sans fioritures ou amalgames.
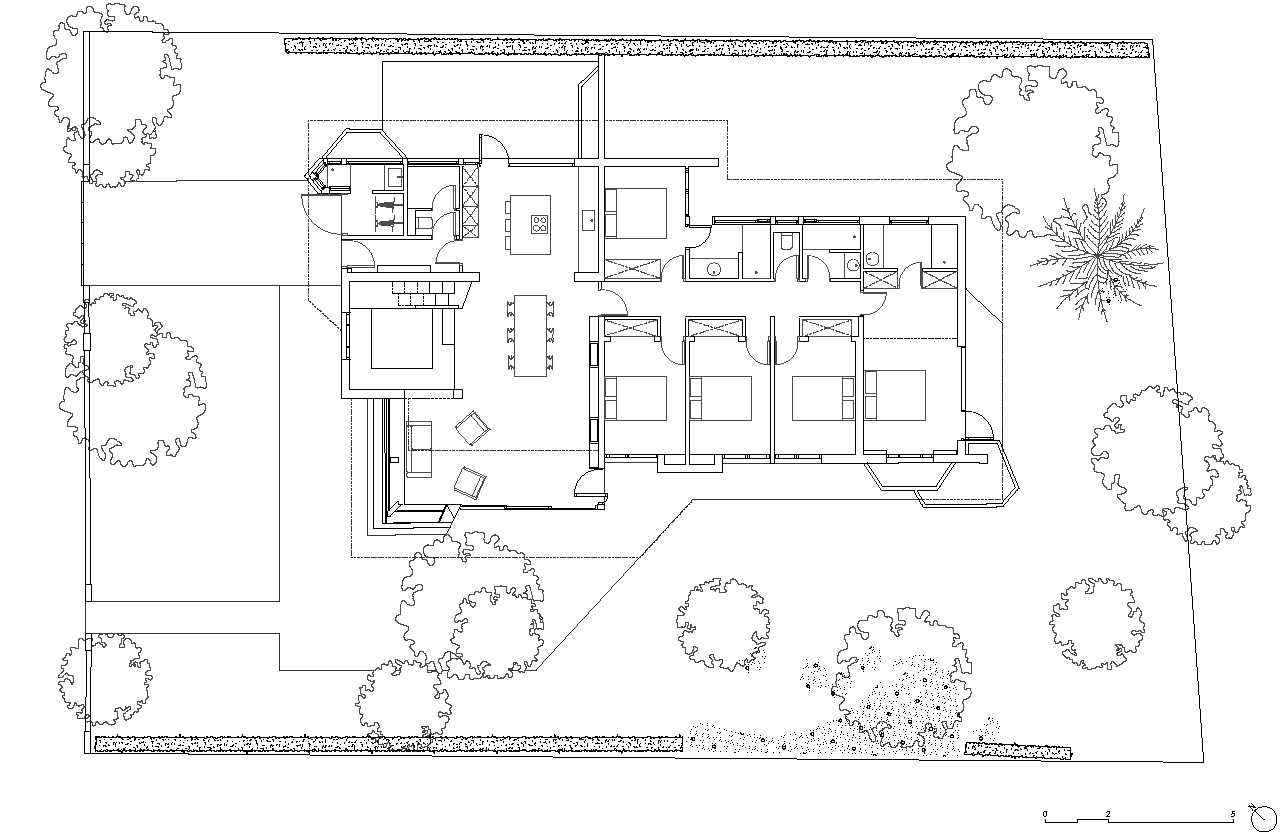
Aucune modification volumétrique n’a été opérée. La toiture palliative, mono-pente du R+1 a été supprimée pour restituer la volumétrie rectiligne en toiture terrasse épousant la skyline.
Des ouvertures trapézoïdales ont été ajoutées sur certaines façades dans le même vocabulaire que la création d’origine.
La maîtrise d’ouvrage audacieuse et consciente de l’œuvre acquise nous a permis de la sublimer sans la dénaturer.
Ensemble, nous pensons et imaginons l’essence même des fruits natifs de la réflexion de ce lieu bâti, sans perversion de son identité, tout en offrant le confort actuel d’une résidence secondaire.


































